thank you
Your email has been sent.
19 Union Sq W 4,629 - 16,309 SF of Retail Space Available in New York, NY 10003



ALL AVAILABLE SPACES(3)
Display Rental Rate as
- SPACE
- SIZE
- TERM
- RENTAL RATE
- SPACE USE
- CONDITION
- AVAILABLE
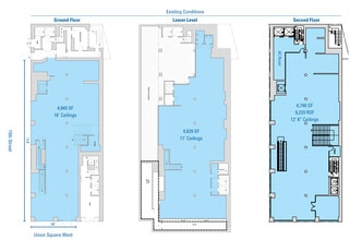
Multi-Level Corner Flagship Retail Space fronting Union Square Park - 16,309 SF Total - Outstanding location with tremendous foot traffic and direct access to the Union Square Transit Hub, the 4th busiest subway station in NYC - Union Square is one of the busiest shopping districts in Manhattan - Retail leasing increased 500% from Q4 2025 to Q1 2025 - Union Square Farmers Market draws 60,000 daily shoppers - Existing elevator connects all three levels - Existing escalator connects the ground and second floors - Ownership will install new storefronts - Ceiling Hts: Ground - 16' / Lower Level - 11' / 2nd Floor - 12'8"
- Partially Built-Out as Standard Retail Space
- Can be combined with additional space(s) for up to 16,309 SF of adjacent space
- Exposed Ceiling
- Existing elevator connects all 3 floors
- Tremendous foot traffic
- Existing elevator connects ground & 2nd Floor
- Space is in Excellent Condition
- Private Restrooms
- Multi-level corner Flagship space
- Fronting Union Square Park
- Direct access to Union Sq transit hub
Multi-Level Corner Flagship Retail Space fronting Union Square Park - 16,309 SF Total - Outstanding location with tremendous foot traffic and direct access to the Union Square Transit Hub, the 4th busiest subway station in NYC - Union Square is one of the busiest shopping districts in Manhattan - Retail leasing increased 500% from Q4 2025 to Q1 2025 - Union Square Farmers Market draws 60,000 daily shoppers - Existing elevator connects all three levels - Existing escalator connects the ground and second floors - Ownership will install new storefronts - Ceiling Hts: Ground - 16' / Lower Level - 11' / 2nd Floor - 12'8"
- Partially Built-Out as Standard Retail Space
- Can be combined with additional space(s) for up to 16,309 SF of adjacent space
- Exposed Ceiling
- Existing elevator connects all 3 floors
- Tremendous foot traffic
- Existing escalator connects ground & 2nd Floor
- Space is in Excellent Condition
- Private Restrooms
- Multi-level corner Flagship space
- Fronting Union Square Park
- Direct access to Union Sq transit hub
Multi-Level Corner Flagship Retail Space fronting Union Square Park - 16,309 SF Total - Outstanding location with tremendous foot traffic and direct access to the Union Square Transit Hub, the 4th busiest subway station in NYC - Union Square is one of the busiest shopping districts in Manhattan - Retail leasing increased 500% from Q4 2025 to Q1 2025 - Union Square Farmers Market draws 60,000 daily shoppers - Existing elevator connects all three levels - Existing escalator connects the ground and second floors - Ownership will install new storefronts - Ceiling Hts: Ground - 16' / Lower Level - 11' / 2nd Floor - 12'8" - 2nd Fl: 6,740 USF / 9,233 RSF
- Partially Built-Out as Standard Retail Space
- Can be combined with additional space(s) for up to 16,309 SF of adjacent space
- Exposed Ceiling
- Existing elevator connects all 3 floors
- Tremendous foot traffic
- Existing escalator connects ground & 2nd Floor
- Space is in Excellent Condition
- Private Restrooms
- Multi-level corner Flagship space
- Fronting Union Square Park
- Direct access to Union Sq transit hub
| Space | Size | Term | Rental Rate | Space Use | Condition | Available |
| Basement | 4,629 SF | Negotiable | Upon Request Upon Request Upon Request Upon Request Upon Request Upon Request | Retail | Partial Build-Out | January 15, 2026 |
| Ground | 4,940 SF | Negotiable | Upon Request Upon Request Upon Request Upon Request Upon Request Upon Request | Retail | Partial Build-Out | January 15, 2026 |
| 2nd Floor | 6,740 SF | Negotiable | Upon Request Upon Request Upon Request Upon Request Upon Request Upon Request | Retail | Partial Build-Out | January 15, 2026 |
Basement
| Size |
| 4,629 SF |
| Term |
| Negotiable |
| Rental Rate |
| Upon Request Upon Request Upon Request Upon Request Upon Request Upon Request |
| Space Use |
| Retail |
| Condition |
| Partial Build-Out |
| Available |
| January 15, 2026 |
Ground
| Size |
| 4,940 SF |
| Term |
| Negotiable |
| Rental Rate |
| Upon Request Upon Request Upon Request Upon Request Upon Request Upon Request |
| Space Use |
| Retail |
| Condition |
| Partial Build-Out |
| Available |
| January 15, 2026 |
2nd Floor
| Size |
| 6,740 SF |
| Term |
| Negotiable |
| Rental Rate |
| Upon Request Upon Request Upon Request Upon Request Upon Request Upon Request |
| Space Use |
| Retail |
| Condition |
| Partial Build-Out |
| Available |
| January 15, 2026 |
Basement
| Size | 4,629 SF |
| Term | Negotiable |
| Rental Rate | Upon Request |
| Space Use | Retail |
| Condition | Partial Build-Out |
| Available | January 15, 2026 |
Multi-Level Corner Flagship Retail Space fronting Union Square Park - 16,309 SF Total - Outstanding location with tremendous foot traffic and direct access to the Union Square Transit Hub, the 4th busiest subway station in NYC - Union Square is one of the busiest shopping districts in Manhattan - Retail leasing increased 500% from Q4 2025 to Q1 2025 - Union Square Farmers Market draws 60,000 daily shoppers - Existing elevator connects all three levels - Existing escalator connects the ground and second floors - Ownership will install new storefronts - Ceiling Hts: Ground - 16' / Lower Level - 11' / 2nd Floor - 12'8"
- Partially Built-Out as Standard Retail Space
- Space is in Excellent Condition
- Can be combined with additional space(s) for up to 16,309 SF of adjacent space
- Private Restrooms
- Exposed Ceiling
- Multi-level corner Flagship space
- Existing elevator connects all 3 floors
- Fronting Union Square Park
- Tremendous foot traffic
- Direct access to Union Sq transit hub
- Existing elevator connects ground & 2nd Floor
Ground
| Size | 4,940 SF |
| Term | Negotiable |
| Rental Rate | Upon Request |
| Space Use | Retail |
| Condition | Partial Build-Out |
| Available | January 15, 2026 |
Multi-Level Corner Flagship Retail Space fronting Union Square Park - 16,309 SF Total - Outstanding location with tremendous foot traffic and direct access to the Union Square Transit Hub, the 4th busiest subway station in NYC - Union Square is one of the busiest shopping districts in Manhattan - Retail leasing increased 500% from Q4 2025 to Q1 2025 - Union Square Farmers Market draws 60,000 daily shoppers - Existing elevator connects all three levels - Existing escalator connects the ground and second floors - Ownership will install new storefronts - Ceiling Hts: Ground - 16' / Lower Level - 11' / 2nd Floor - 12'8"
- Partially Built-Out as Standard Retail Space
- Space is in Excellent Condition
- Can be combined with additional space(s) for up to 16,309 SF of adjacent space
- Private Restrooms
- Exposed Ceiling
- Multi-level corner Flagship space
- Existing elevator connects all 3 floors
- Fronting Union Square Park
- Tremendous foot traffic
- Direct access to Union Sq transit hub
- Existing escalator connects ground & 2nd Floor
2nd Floor
| Size | 6,740 SF |
| Term | Negotiable |
| Rental Rate | Upon Request |
| Space Use | Retail |
| Condition | Partial Build-Out |
| Available | January 15, 2026 |
Multi-Level Corner Flagship Retail Space fronting Union Square Park - 16,309 SF Total - Outstanding location with tremendous foot traffic and direct access to the Union Square Transit Hub, the 4th busiest subway station in NYC - Union Square is one of the busiest shopping districts in Manhattan - Retail leasing increased 500% from Q4 2025 to Q1 2025 - Union Square Farmers Market draws 60,000 daily shoppers - Existing elevator connects all three levels - Existing escalator connects the ground and second floors - Ownership will install new storefronts - Ceiling Hts: Ground - 16' / Lower Level - 11' / 2nd Floor - 12'8" - 2nd Fl: 6,740 USF / 9,233 RSF
- Partially Built-Out as Standard Retail Space
- Space is in Excellent Condition
- Can be combined with additional space(s) for up to 16,309 SF of adjacent space
- Private Restrooms
- Exposed Ceiling
- Multi-level corner Flagship space
- Existing elevator connects all 3 floors
- Fronting Union Square Park
- Tremendous foot traffic
- Direct access to Union Sq transit hub
- Existing escalator connects ground & 2nd Floor
PROPERTY FACTS
FEATURES AND AMENITIES
- 24 Hour Access
- Bus Line
- Metro/Subway
- Security System
- Energy Star Labeled
NEARBY MAJOR RETAILERS
Presented by
19 Union Sq W
Hmm, there seems to have been an error sending your message. Please try again.
Thanks! Your message was sent.



